国内目前压型钢板设计人员年轻化,很多工程师未能有工地施工经验即开始从事设计工作。这种情况下可参考的内容例如《压型钢板、夹芯板屋面及墙体建筑构造》(01J925系列)等在压型板工程领域用于设计施工的书籍较少,同时这些书籍较多面对设计院作为图集使用,实际施工做法可能会与之有所不同,本文列举几个常见细部设计可能出现的问题,希望能够对从事相关行业工程设计人员提供到一定的帮助。
一、洞口侧收边通常做法及问题
1、泛水压板不考虑波峰位置构造
部分设计人员在考虑墙面窗口洞口节点参照图集做法,所采用的泛水压板构造节点如下图1
图1 门窗洞口泛水压板构造
在墙面压型板安装期间,很多施工队伍并没有控制压型板的安装定位,待完全安装好墙面压型板后再进行门窗洞口侧泛水时会发现波峰时?;岽υ诜核诘陌沧扒?。如下图2
图2 门窗洞口泛水压板构造及现场实际情况
上图图示左侧压型板的波峰处于泛水压脚安装区域,实际情况可能两侧都有两个构件相冲突的情况。遇此情况时,由于此处属于小构件,并不会太大的影响外观,加上施工工期压力,较多总包单位会选择让施工队自行处理,并不会重新定制该处泛水,大致处理方案如下图3
图3 常见处理方式
上图左侧收边与波峰相碰时,施工单位现场切除碰撞处波峰,使用橡胶锤敲平剩余的波峰部分再安装收边;右侧的处理方式为:将碰撞处收边拿到当地工厂重新加工后安装。两种处理方法在实际项目案例中均存在实施,左侧施工方案方便但敲击处会不美观、同时会有影响防水隐患;右侧处理方式麻烦,但安装后相对左侧方式会较为美观。
2、泛水压板部分考虑波峰位置构造
为避免出现上述情况发生,有些工程师在做设计时会把门窗洞口的泛水做成两件套形式,以避免波峰位置造成的位置冲突,如下图4
图4 窗套分开做法
上图中节点已经考虑了部分压型钢板波峰与收边相碰的情况,遇波谷时用双拼收边,遇波峰时用单个收边。此方案已经能满足大多数业主要求,较为美观且能保证防水效果。但是由于各个项目所采用的压型板材质强度不同,其两件套形式的泛水仅有窗框处一处固定点,如果项目中采用的冷弯檩条横截面过大,会使泛水悬挑长度过大,导致两件套中间竖向缝隙较为明显。
陆丰甲湖湾电厂 - 物资仓库
3、板压泛水未考虑波峰位置
常用门窗洞口侧做法中,有一种是压型板切口后安装门窗洞口侧泛水,其节点如下图5
图5 板压泛水常见做法
此种做法是考虑现场来裁剪板侧安装,但由于门窗定位一般是由建筑设计师定位,加上门窗宽度一般与压型板波峰间距模数不匹配,容易出现图2中的现场情况,切波峰会严重影响此处外观。
二、如何有效控制波峰位置
对于普通的项目,由于类似上述问题并不会对项目的进程及工作展开造成很大影响,故控制起始墙面压型板的起始安装位置和严格控制安装宽度并不会得到很好的重视。但对于外观要求非常高的建设方或者对于精品工程,严格控制波峰的位置就显得尤为重要了。
有效地控制波峰位置可以从两个方面入手,分别是布板设计方面和节点设计方面。
1、布板设计过程中的控制
在围护结构的设计中,均会有类似压型板布置平立面图纸用于安装,下图6为一简单的纵墙墙面布置图。
图6 纵墙布置图样例
常规的墙面压型板因为考虑安装性能和防水性能均会在板型设计中设置公母肋,布置图中的板线一般为墙面压型板两侧的公母肋有效宽度位置。此轴面的门窗洞口中,6米宽大门由于涉及到受力结构等客观原因不能左右微调,故布置图中选择以此大门中心为压型板的布置控制点,向左右两侧放线,将所有窗口的中心位置与该窗口顶部墙面中心重合。再将设计好的泛水放样到轴立面图中,依据布置图来微调窗口位置,使窗洞两侧的墙板波峰形成对称关系,可在宏观上有效避免门窗洞口左右两侧外观不一致的情况出现。
陆丰甲湖湾电厂 - 物资仓库
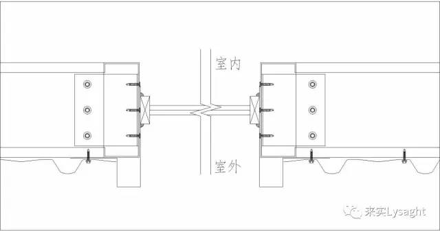
2、节点设计过程中的控制
如图1至图5的门窗洞口节点中,门窗侧处所采用的横向和竖向檩条均为工厂预打孔檩条,到现场后采用转角连接件配套平头或者普通螺栓来连接。如果在布板设计过程中已经考虑了门窗洞口两侧的波峰位置,这种节点中采用的檩条连接方式可行。但由于施工时仍然会产生少许不可避免的施工误差,故在节点设计时可以考虑如下图7的方式来连接洞口侧横竖向檩条。
图7 转角连接件采用螺钉连接
图7所示节点中,转角连接件采用不预开孔形式同时使用等效受力的自攻螺钉来固定洞口竖向檩条,这种方法可以在现场调整掉由于安装误差带来的洞口偏移,可以较多适用于洞口位置可以左右微调的洞口,如小门,小窗,通风口等。当竖向檩条会将横向檩条截断时(如门侧处),尚需将所有两侧截断檩条向洞口内侧加长一定长度,现场根据所有洞口处的微调情况切割该檩条,即可将所有洞口处理到位。
陆丰甲湖湾电厂 - 物资仓库
结 语:实际工程时可能会遇见各种铺板形式(各方向铺设),各种类型洞口(门洞、窗洞、设备洞口)。本文仅以竖铺板洞口侧边为例,针对板与收边的处理细节提出如何进行有效的波峰控制,同时将压型金属板边角处理得美观和符合功能做为一种设计上需要考虑的设计细节着重点出。希望通过本文能让大家了解到压型金属板的边角也能做到和平板结构一样美观、符合功能,共同做出更加完美的压型金属板项目。

021-58120138